 |
 |
|
|
ÃÖ°í¼Óµµ:15 m/min
Çã¿ëÇÏÁß:25~50 kg
¼öÆò ·¹ÀÏ Ç¥Áذî·ü¹Ý°æ:600 mm
»ó½Â¡¤Çϰ·¹ÀÏ Ç¥Áذî·ü¹Ý°æ:600 mm
Æò±ÕÆÄ´Ü°µµ:5500kgf
üÀÎ ÃÖ°í »ç¿ë¿Âµµ:230 ¡É |
|
|
|
|
 |
DRIVE UNIT
ZNÇü Trolley ConveyorÀÇ ±¸µ¿ºÎ´Â Sprocket Type°ú Caterpiller
TypeÀÌ ÀÖ½À´Ï´Ù. |
| |
| SPROCKET TYPE |
|
|
| SPROCKET
TYPE DRIVE UNIT |
NZ TYPE MAIN
SPROCKET :
Sprocket ¸¶¸ð½Ã ¹Ý´ë·Î Á¶¸³ÇÏ¿© »ç¿ë ÇÒ ¼ö ÀÖ¾î,
Á¾·¡ÀÇ Á¦Ç°¿¡ ºñÇØ ¼ö¸íÀÌ 2¹è ¿¬ÀåµË´Ï´Ù.
¿îÀü½Ã üÀÎÀÌ SprocketÀÇ Á¤À§Ä¡¸¦ ÀÌÅ»ÇØ üÀÎÇÉ
¹× ¸µÅ©¸¦ ¼Õ»ó½ÃÄÑ Ã¼Àμö¸íÀ» ´ÜÃàÇÏ´Â ¿øÀÎÀÌ
µÇ¾úÀ¸³ª À̸¦ º¸¿ÏÇÏ¿© ¾ÈÁ¤µÈ ¿îÀüÀ» ÇÒ ¼ö ÀÖ°Ô
°í¾ÈµÈ Á¦Ç°ÀÔ´Ï´Ù.
|
| ÀÇÀåµî·Ï
Á¦0350832È£ |
 |
|
|
|
NZ-75
RAIL º¥µùÀåÄ¡
ÀÚÀ¯·Î¿î ·¹ÀϹݰæ
Àú·ÅÇÑ ºñ¿ë
ÀÛ¾÷½Ã°£ ´ÜÃà
·¹ÀÏ ´ë·®»ý»ê
±â¾÷ °æÀï·Â Çâ»ó |
 |
½Ç¿ë½Å¾Èµî·Ï
Á¦0358701È£
CONVEYOR RAIL º¥µùÀåÄ¡ |
|
| |
|
 |
 |
|
|
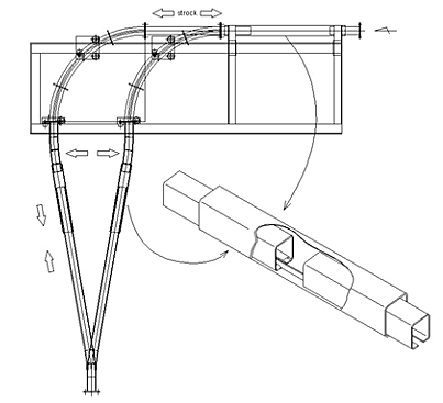
90µµ
TAKE-UPÀåÄ¡
½Ç¿ë½Å¾Èµî·Ï0371700È£ |
 |
|
|
| |
- LÇü
¶óÀÎÀ» ÅëÇÑ ÀÚÀ¯·Î¿î À§Ä¡¼±Á¤
- ÀÚÀçºñ, µ¿·Âºñ, ¼³Ä¡ºñ Àý°¨
- »ý»ê°ø°£ È®º¸¸¦ ÅëÇÑ Àúºñ¿ë °íÈ¿À²ÀÇ Á¦Ç°»ý»ê |
|
| |
| NZ-75 Çü TROLLEY CONVEYOR |
 |
|
 |
| ¹°³îÀÌ¿ë Æ©ºê¸¦ ³«ÇÏÁöÁ¡¿¡¼ ½½¶óÀÌµå »óºÎ(Ÿ¿ö)±îÁö ¿î¹Ý ÇÏ´Â ±â°è·Î, ¹°³îÀ̸¦ Áñ±â´Â »ç¶÷ÀÌ Æ©ºê¸¦ Á÷Á¢ ¸Þ°í Ÿ¿ö±îÁö ¿Ã¶ó°¡´Â ºÒÆíÀ» ÇØ¼ÒÇϱâÀ§ÇÏ¿© »ç¿ëµÇ´Â Äܺ£¾îÀÔ´Ï´Ù. |
|
|
|
| |
 |
|
|
| |
| °æ·®À¸·Î 100kgÀÌÇÏ ¿î¹Ý¹°¿¡ ÁÖ·Î »ç¿ëµÇ´Â Çü½ÄÀÔ´Ï´Ù. |
|
|