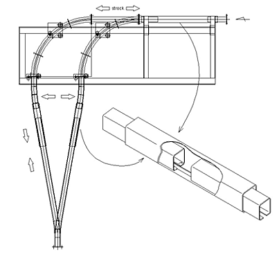
NZ TYPE MAIN
SPROCKET :
Its worn-down sprocket is designed to be assembled
with the opposite end, so its life span ca
be doubled.
When being operated, a sprocket might be out
of its designed location to damage a chain
pin and a link, and our new design has solved
this problem for a stable operation.
|
| Certificates
of registration of design No0350832 |
 |
|